Przejdź do treści
dombezpozwolenia70
Menu
Wydarzenia
Specyfikacja Domu
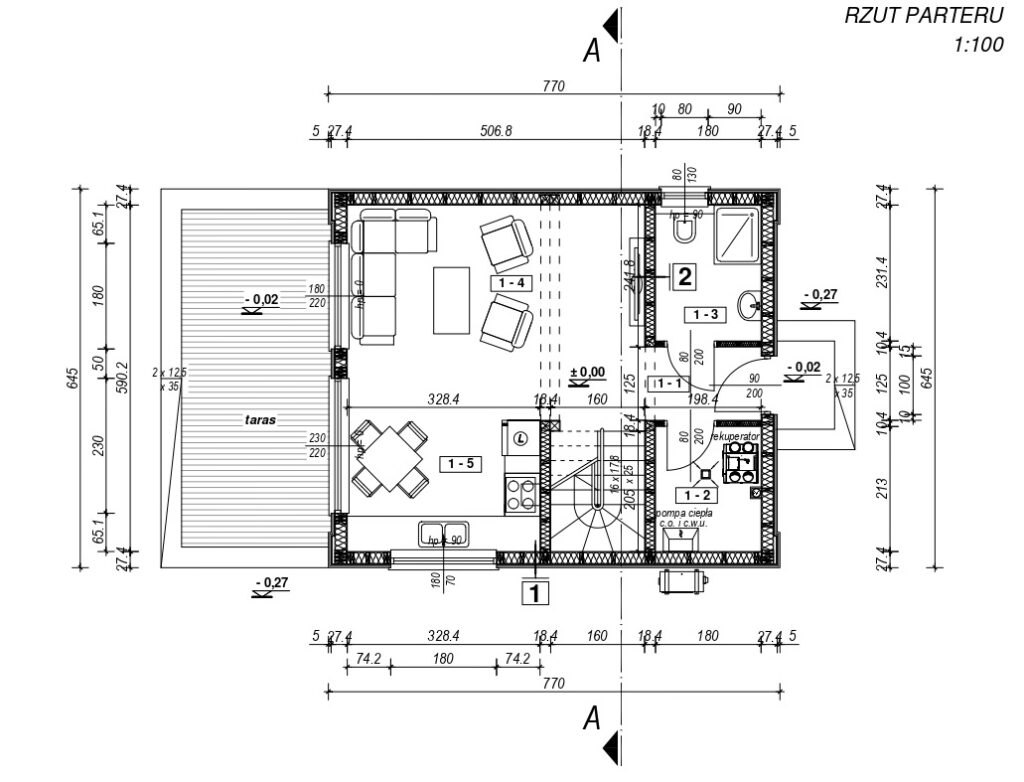
Układ wnętrza
Oferta
Kontakt
Układ wnętrza
Przewijanie do góry